お問合せ先 西川口営業所
アクセス
埼玉県川口市並木3-1-19
第1永新ビル5・6階
JR 西川口駅 東口 徒歩1分
営業時間
9:50~17:50
定休日
毎週火・水曜日
(冬期休暇 他)

イクシア川口元郷

4,480 万円

所在地
埼玉県川口市末広1丁目
地図を見る
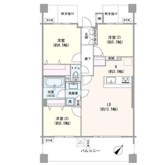
間取り 3LDK
専有面積 70.02㎡(壁芯)
交通
埼玉高速鉄道川口元郷」駅まで  徒歩8分
京浜東北・根岸線川口」駅まで  徒歩23分
主要採光面 南東
所在階数 4階 / 地上8階建
築年月 2006年10月
所在地
埼玉県川口市末広1丁目
地図を見る
交通
埼玉高速鉄道川口元郷」駅まで  徒歩8分
京浜東北・根岸線川口」駅まで  徒歩23分
間取り 3LDK
専有面積 70.02㎡(壁芯)
主要採光面 南東
所在階数 4階 / 地上8階建
築年月 2006年10月

設備・物件の
こだわりポイント

部屋
リフォーム(履歴含む) リフォーム(履歴含む)
LDK15帖以上 LDK15帖以上
建物・設備
エレベーター エレベーター
ペット可 ペット可
総戸数30戸以上 総戸数30戸以上
宅配BOX 宅配BOX
オートロック オートロック
その他
住宅ローン控除 住宅ローン控除
(適用には条件があります)

この物件の
おすすめポイント!

~陽光と開放感に包まれる上質空間リノベ住戸で叶える快適な暮らし~ ◇埼玉高速鉄道線「川口元郷」駅まで徒歩8分を立地 ◇京浜東北線「川口」駅も利用可能で通勤・通学に便利 ◇東南向き×4階部分、陽光と眺望に恵まれた快適住戸 ◇約16帖のLDKは家族が自然と集まる憩いの空間 ◇約15㎡のワイドバルコニーで日常にゆとりと開放感 ◇新規リノベーション(令和7年8月末完成) ◇エコカラット&間接照明で上質な暮らしを演出 ◇フルオープンカウンターキッチンで会話広がる食卓 ◇IHクッキングヒーター&食洗機で家事をスマートに ◇1618サイズの浴室×浴室乾燥機で快適なバスタイム ◇豊富な収納力!大容量WIC&シューズボックス有 ◇エアコン1基付きで引っ越し後すぐに快適生活開始 ◇オートロック&モニターインターホンで安心の毎日 ◇宅配ボックス付きで忙しいご家庭も荷物受取ラクラク ◇ペット2匹まで飼育可(犬・猫可/細則あり)

リフォーム・リノベーション内容

■リノベーション工事実施(2025年8月末完了) ◇システムキッチン交換 ◇洗面化粧台交換 ◇ユニットバス交換 ◇トイレ交換 ◇フローリング貼替 ◇クロス貼替 ◇建具交換 ◇ダウンライト設置 ◇洗濯機パン交換 ◇室内クリーニング

マンション名
イクシア川口元郷
価格

4,480万円

ローンシミュレーション
所在地

埼玉県川口市末広1丁目22-15

地図を見る 地図を見る
交通
埼玉高速鉄道川口元郷」駅まで 徒歩8分
京浜東北・根岸線川口」駅まで 徒歩23分
専有面積
70.02㎡ (壁芯)
間取り
3LDK
バルコニー面積
15㎡
バルコニー向き
南東
主要採光面
南東
建物構造
鉄筋コンクリート造
所在階/階建
4階 / 地上8階建
築年月
2006年10月
総戸数
38戸
管理費
13,020円 / 月
修繕積立金
18,280円 / 月
ペット
駐車場 / 駐車場代
空なし  
現況
現在空室
引渡し可能年月
相談
土地権利
所有権
管理会社
(株)ライフポート西洋
管理形態
全部委託
管理員
日勤
施主
(株)ジョイント・ランド
施工
埼玉建興(株)
取引態様
仲介
その他概要
設備:公営水道、本下水
備考
※室外機置場面積/3.82㎡
※総戸数/38戸(内訳:住戸数37戸、管理事務室1戸)
※総戸数/38戸(内訳:住戸数37戸、管理事務室1戸)
※インターネット接続料/月額880円
※エミットマンションシステム利用料/月額1155円
※ケーブルテレビ利用料/月額110円
※駐車場、バイク置場、駐輪場の空き状況につきましては担当者までお問い合わせください。

査定・売却のご相談

お客さまに合わせたご売却方法を
提案いたします。
お気軽にお問合せください。

無料査定・売却の相談をする

オークラヤ住宅について

おすすめ物件