お問合せ先 門前仲町営業所
アクセス
東京都江東区門前仲町2-5-9
深川三和ビル 4階
都営大江戸線、東京メトロ東西線門前仲町駅 5番出口 徒歩1分
営業時間
9:50~17:50
定休日
毎週火・水曜日
(冬期休暇 他)

シティコープ豊洲

6,999 万円

所在地
東京都江東区豊洲1丁目
地図を見る
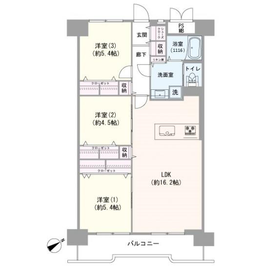
間取り 3LDK
専有面積 71.92㎡(壁芯)
交通
東京メトロ有楽町線豊洲」駅まで  徒歩9分
ゆりかもめ豊洲」駅まで  徒歩13分
主要採光面 南東
所在階数 7階 / 地上14階建
築年月 1981年10月
所在地
東京都江東区豊洲1丁目
地図を見る
交通
東京メトロ有楽町線豊洲」駅まで  徒歩9分
ゆりかもめ豊洲」駅まで  徒歩13分
間取り 3LDK
専有面積 71.92㎡(壁芯)
主要採光面 南東
所在階数 7階 / 地上14階建
築年月 1981年10月

設備・物件の
こだわりポイント

立地・交通
駅まで平坦 駅まで平坦
部屋
リフォーム(履歴含む) リフォーム(履歴含む)
リフォーム後引渡し リフォーム後引渡し
LDK15帖以上 LDK15帖以上
建物・設備
エレベーター エレベーター
総戸数100戸以上 総戸数100戸以上

この物件の
おすすめポイント!

~新規リノベーション完成後お引渡し(2025年11月完成予定)~ ~おすすめポイント~ ■2沿線利用可(東京メトロ有楽町線「豊洲」駅まで徒歩9分・ゆりかもめ「豊洲」駅まで徒歩13分) ■総戸数165戸のマンション。エレベーター2基有。 ■14階建ての7階部分。南東向きの3LDKです! ■管理人日勤(月~金 8:40~17:00、土 8:40~12:00) ■24時間ゴミ出し可能(年末年始を除く)。ご自身の生活リズムに合わせてゴミ出しが可能です。 ■共用部分の大規模修繕工事実施済み(2024年1月~7月)。 ~周辺環境~ ・ららぽーと豊洲まで約700M(徒歩9分) ・フードストアあおき東京豊洲店まで約730M(徒歩10分) ・スーパービバホーム豊洲店まで約850M(徒歩11分) ・文化堂豊洲店まで約850M(徒歩11分) ・豊洲北小学校まで約790M(徒歩10分)

リフォーム・リノベーション内容

【新規リノベーション完成後お引渡し(2025年11月完成予定)】 ■フローリング貼り替え(天然木使用) ■天井・壁 クロス貼り替え ■建具(鏡面仕様)交換 ■玄関 磨き石タイル貼り替え ■シューズボックス(鏡面仕様)交換 ■洗面室・トイレ フロアタイル貼り替え ■システムキッチン設置 幅2290mm(食洗機・浄水器付) ■給湯器交換 ■ユニットバス交換1116(追焚付) ■室内給排水管交換(スラブ上の交換可能な部分のみ) ■浴室暖房乾燥機設置 ■洗面化粧台交換 幅900mm ■シャワートイレ交換 ■照明器具設置(LED) ■全居室AC設置可(一部先行配管) ※詳細は担当までお気軽にお問い合わせください。

マンション名
シティコープ豊洲
価格

6,999万円

ローンシミュレーション
所在地

東京都江東区豊洲1丁目3-26

地図を見る 地図を見る
交通
東京メトロ有楽町線豊洲」駅まで 徒歩9分
ゆりかもめ豊洲」駅まで 徒歩13分
専有面積
71.92㎡ (壁芯)
間取り
3LDK
バルコニー面積
8.88㎡
バルコニー向き
南東
主要採光面
南東
建物構造
鉄骨鉄筋コンクリート造
所在階/階建
7階 / 地上14階建
築年月
1981年10月
総戸数
165戸
管理費
7,000円 / 月
修繕積立金
9,000円 / 月
ペット
不可
駐車場 / 駐車場代
空なし  
現況
現在空室
引渡し可能年月
相談
土地権利
所有権
管理会社
管理形態
自主
管理員
日勤
施主
東京都住宅供給公社
施工
不明
取引態様
仲介
その他概要
備考
※管理形態/自主管理(一部委託:東京ビル整美株式会社)
※駐輪場(空有)100円/月
※自治会費(任意加入)200円/月
※詳細は担当までお気軽にお問い合わせください。~2025年8月現在~

査定・売却のご相談

お客さまに合わせたご売却方法を
提案いたします。
お気軽にお問合せください。

無料査定・売却の相談をする

オークラヤ住宅について

おすすめ物件