お問合せ先 門前仲町営業所
アクセス
東京都江東区門前仲町2-5-9
深川三和ビル 4階
都営大江戸線、東京メトロ東西線門前仲町駅 5番出口 徒歩1分
営業時間
9:50~17:50
定休日
毎週火・水曜日
(冬期休暇 他)

ライオンズタワー大島

6,180 万円

所在地
東京都江東区大島8丁目
地図を見る
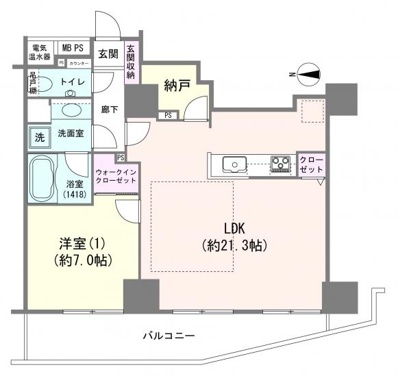
間取り 1LDK
専有面積 65.95㎡(壁芯)
交通
都営新宿線大島」駅まで  徒歩10分
主要採光面 西
所在階数 6階 / 地上30階地下1階建
築年月 2004年7月
所在地
東京都江東区大島8丁目
地図を見る
交通
都営新宿線大島」駅まで  徒歩10分
間取り 1LDK
専有面積 65.95㎡(壁芯)
主要採光面 西
所在階数 6階 / 地上30階地下1階建
築年月 2004年7月

設備・物件の
こだわりポイント

部屋
LDK15帖以上 LDK15帖以上
建物・設備
エレベーター エレベーター
ペット可 ペット可
総戸数100戸以上 総戸数100戸以上
宅配BOX 宅配BOX
駐車場空あり 駐車場空あり
オートロック オートロック

この物件の
おすすめポイント!

~地域と調和し、主張する、タワーフォルム ~ 都営新宿線「大島」駅まで徒歩10分✕リフォーム履歴有(2017年1月実施) ●マンションについて ・総戸数288戸の大規模マンション。 ・掃除の行き届いた綺麗なエントランスは洗礼されたガラス張り。 ・敷地内は豊かな樹木と草花で緑の豊かさを演出。 ・2004年7月築。新耐震基準のマンションです。 ・安心感のあるオートロック付。 ・不在時にも荷物が受け取れる宅配BOX付。荷物の受け取りが多い方に便利な設備です。 ・ペットの飼育が可能です。(※飼育細則有) ・2050年までの長期修繕計画書有り。管理員週7日勤務、管理体制良好のマンションです。 ・タワー棟はオール電化システム仕様。 ●お部屋について ・30階建て6階部分のお部屋です。 ・LDK(約21.3帖)、開放的なカウンターキッチン。 ・リビングには嬉しい床暖房付。 ・リビングと洋室がバルコニーに面したお部屋です。 ・豊富な収納スペース(納戸・ウォークインクローゼット) ・浴室は【1418サイズ】。広めの浴槽で、一日の疲れをゆったりと癒せます。

リフォーム・リノベーション内容

~リフォーム履歴(平成29年1月実施)~ ・クロス張り替え(天井・壁) ・CF張り替え(トイレ・洗面室) ・便器交換 ・紙巻器位置変更 ・洗面台交換 ・シャワーフック交換(浴室) ※詳細は担当までお気軽にお問い合わせください。

マンション名
ライオンズタワー大島
価格

6,180万円

ローンシミュレーション
所在地

東京都江東区大島8丁目28-5

地図を見る 地図を見る
交通
都営新宿線大島」駅まで 徒歩10分
専有面積
65.95㎡ (壁芯)
間取り
1LDK
バルコニー面積
11.74㎡
バルコニー向き
西
主要採光面
西
建物構造
その他
所在階/階建
6階 / 地上30階地下1階建
築年月
2004年7月
総戸数
288戸
管理費
11,030円 / 月
修繕積立金
9,100円 / 月
ペット
駐車場 / 駐車場代
空あり 23,000円/月~33,000円/月 
~2025年10月現在~
現況
居住中
引渡し可能年月
相談
土地権利
所有権
管理会社
株式会社大京アステージ
管理形態
全部委託
管理員
日勤
施主
株式会社大京
施工
西松建設株式会社
取引態様
仲介
その他概要
設備:オール電化
備考
※構造:RC・鉄骨造
※総戸数内訳(住戸数287戸、公共施設1戸)
※修繕積立金は2026年1月分から月額22,290円に改定予定
※駐車場(空有)23000~33000円/月
※バイク置場(空有)1000~1500円/月
※駐輪場(空有)200~800円/月
※空き情報等詳細については、担当者にお問い合わせください~2025年10月現在~

査定・売却のご相談

お客さまに合わせたご売却方法を
提案いたします。
お気軽にお問合せください。

無料査定・売却の相談をする

オークラヤ住宅について

おすすめ物件