ビック池袋東口ビル10階
(冬期休暇 他)
北区西ケ原4丁目中古戸建
13,800 万円
| 所在地 | 東京都北区西ケ原4丁目
|
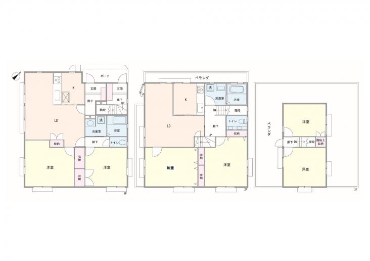
間取り | 6LDK |
|---|---|---|---|
| 建物面積 | 195.15㎡ (公簿) | ||
| 交通 | 土地面積 | 142.1㎡ (公簿) | |
| 築年月 | 1986年9月 |
| 所在地 | 東京都北区西ケ原4丁目
|
|---|---|
| 交通 | |
| 間取り | 6LDK |
| 建物面積 | 195.15㎡ (公簿) |
| 土地面積 | 142.1㎡ (公簿) |
| 築年月 | 1986年9月 |
設備・物件の
こだわりポイント
この物件の
おすすめポイント!
■ オーナーチェンジ物件 月額合計賃料:460,000円 表面利回り:4.00% (1階 210,000円 2・3階 250,000円) ※上記表面利回りは、販売価格に対する年間予定賃料収入(現在の月額賃料の12か月分) の割合であり、公租公課その他、この物件を維持するために必要な費用を控除する前のものです。 また、現在の賃料を将来にわたり保証するものではありません。 旭化成工業(株)施工 × 4LDK+2LDKの2世帯住宅 ■修繕履歴等 ・ヘーベルハウス定期点検実施 ・修繕履歴 □平成27年4月 防水工事 塗装工事 □令和3年2月 ※1階部分 クローゼット(建具交換、収納内部造作) 一部クロス張替 フローリング補修 エアコン設置 キッチン交換 洗面化粧台交換 給湯器交換 □令和6年8月 ※2・3階部分 キッチン交換 ■ ライフインフォメーション ・北区立西ヶ原小学校まで約220m(徒歩3分) ・北区立飛鳥中学校まで約460m(徒歩6分) ・シーズンマートまで約170m(徒歩3分) ・セブンイレブン北区西ケ原3丁目店まで約190m(徒歩3分) ・まいばすけっと駒込7丁目店まで約250m(徒歩4分) ・花と森の東京病院まで約790m(徒歩10分)
リフォーム・リノベーション内容
■修繕履歴等 ・ヘーベルハウス定期点検実施 ・修繕履歴 □平成27年4月 防水工事 塗装工事 □令和3年2月 ※1階部分 クローゼット(建具交換、収納内部造作) 一部クロス張替 フローリング補修 エアコン設置 キッチン交換 洗面化粧台交換 給湯器交換 □令和6年8月 ※2・3階部分 キッチン交換
- 価格
-
13,800万円
ローンシミュレーション
- 所在地
-
東京都北区西ケ原4丁目
- 交通
-
東京メトロ南北線「西ケ原」駅まで 徒歩9分
- 築年月
- 1986年9月
- 間取り
- 6LDK
- 建物面積
- 195.15㎡ (公簿)
- 建物構造
- 軽量鉄骨
- 土地権利
- 所有権
- 土地面積
- 142.1㎡ (公簿)
- 地目
- 宅地
- 私道負担
- 有 8.95㎡
- セットバック
- 要 13.2㎡
- 接道状況
-
南西 私道 幅員3.6m
北西 公道 幅員3.8m
北東 私道 幅員2.2m
- 地勢
- -
- 都市計画
- 市街化区域
- 用途地域
- 第一種中高層住居専用地域
- 建ぺい率
- 60%
- 容積率
- 200%
- 駐車場
- -
- 現況
- 賃貸中
- 引渡し可能年月
- 相談
- 取引態様
- 仲介
- その他概要
- 設備:電気、公営水道、本下水、都市ガス
- 備考
-
※正確な図面がないため、バルコニー面積は不明です
※4LDK+2LDKの間取りです
査定・売却のご相談
お客さまに合わせたご売却方法を
提案いたします。
お気軽にお問合せください。