お問合せ先 池袋営業所
アクセス
東京都豊島区東池袋1-5-6
ビック池袋東口ビル10階
JR 池袋駅 32番出口 徒歩1分
営業時間
9:50~17:50
定休日
毎週火・水曜日
(冬期休暇 他)

常盤台ガーデンソサエティ

13,000 万円

所在地
東京都板橋区前野町2丁目
地図を見る
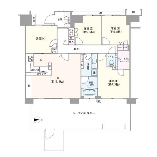
間取り 4LDK
専有面積 95.13㎡(壁芯)
交通
東武東上線ときわ台」駅まで  徒歩8分
主要採光面
所在階数 13階 / 地上18階建
築年月 2009年1月
所在地
東京都板橋区前野町2丁目
地図を見る
交通
東武東上線ときわ台」駅まで  徒歩8分
間取り 4LDK
専有面積 95.13㎡(壁芯)
主要採光面
所在階数 13階 / 地上18階建
築年月 2009年1月

設備・物件の
こだわりポイント

部屋
ルーフバルコニー ルーフバルコニー
建物・設備
エレベーター エレベーター
ペット可 ペット可
総戸数100戸以上 総戸数100戸以上
宅配BOX 宅配BOX
駐車場空あり 駐車場空あり
オートロック オートロック

この物件の
おすすめポイント!

〇総敷地面積約12700㎡、総戸数419戸の大規模レジデンス。 〇平成21年1月築、ライトブラウンとアイボリーのツートンカラーと植栽の緑をプラスした外観デザインが映えます。 〇マンション敷地内に整えられた公開空地「四季の杜」と中庭「TEIEN」は、四季の移ろいを感じながら、心にゆとりをもたらす癒しの空間。お子さまの遊び場やご家族の憩いの場としてもご利用いただけます。 〇24時間有人管理体制に加え、防犯性に優れたダブルオートロックシステムを採用。安心のセキュリティが快適な暮らしを支えます。 〇毎日の生活に彩りと豊かさをプラスしてくれる共用部が充実しています。コンシェルジュカウンター・シアタールーム・パーティールーム・ゲストルーム・フリースタジアム等(※施設によって使用料がかかる場合があります。詳しくはお問い合わせください) 〇不在時にも荷物が受け取れる宅配BOX付。共働きのご夫婦や、外出の多いご家族に便利です。 〇「ペット飼育可能」物件です。犬・猫の場合、2匹まで可!(※細則有) 〇嬉しいルーフバルコニー(35.47㎡)付(使用料:無償)。プライベートな時間をゆったりと過ごせます。 〇お子さまやペットとの暮らしにも便利なスロップシンク付きルーフバルコニーで、毎日の生活がより快適に。 〇多機能で収納力のあるオープンなシステムキッチン(ディスポーザー、シャワー水栓、浄水器付) 〇浴室は【1620サイズ】。フルオートバスの広めの浴槽で、一日の疲れをゆったりと癒せます。窓があり、自然光が差し込む明るく清潔感のある空間です。 〇雨の日などに心強いTES式浴室換気暖房乾燥気。洗濯物を乾かすだけでなく、カビ防止にもなる嬉しい設備です。 〇洗面台には三面鏡を採用。身だしなみを整えやすい事はもちろんですが、鏡の後ろに収納スペースを設ける事により、散らかりやすい洗面スペースをすっきりさせる事が出来るのも嬉しいですね。 〇スタイリッシュなタンクレストイレと手洗いカウンターで、上質感のあるトイレ空間に。 〇リビングにはTES温水床暖房付で寒い冬でもいつも暖か。くつろぎの時間を大切にできます。 ■Life Information ・三徳 ときわ台店まで徒歩1分(約80m) ・東武ストア 前野町店まで徒歩4分(約300m) ・ミネドラッグときわ台店まで徒歩1分(約80m) ・ローソン 前野町店まで徒歩3分(約210m) ・板橋区立富士見台小学校まで徒歩9分(約650m) ・板橋区立板橋第三中学校まで徒歩8分(約610m) ・ファッションセンターしまむら 前野町店まで徒歩10分(約750m) ・イオンスタイル 板橋前野町店まで徒歩14分(約1050m)

マンション名
常盤台ガーデンソサエティ
価格

13,000万円

ローンシミュレーション
所在地

東京都板橋区前野町2丁目16-1

地図を見る 地図を見る
交通
東武東上線ときわ台」駅まで 徒歩8分
専有面積
95.13㎡ (壁芯)
間取り
4LDK
バルコニー面積
-
その他面積
ルーフバルコニー 35.47㎡
バルコニー向き
-
主要採光面
建物構造
鉄骨鉄筋コンクリート・鉄筋コンクリート造
所在階/階建
13階 / 地上18階建
築年月
2009年1月
総戸数
419戸
管理費
15,230円 / 月
修繕積立金
21,880円 / 月
ペット
駐車場 / 駐車場代
空あり 15,000円/月~24,000円/月 
(令和7年11月現在)
現況
居住中
引渡し可能年月
相談
土地権利
所有権
管理会社
三菱地所コミュニティ株式会社
管理形態
全部委託
管理員
日勤
施主
丸紅(株)、住友不動産(株)、(株)明豊エンタープライズ
施工
(株)長谷工コーポレーション
取引態様
仲介
その他概要
設備:公営水道、本下水、都市ガス
備考
≪空き状況≫(令和7年11月現在)
・駐輪場空き有:使用料100円~600円/月
※アルコーブ面積/2.82㎡(使用料無償)
※花台面積/3.10㎡
※CATV使用料/月額385円
※インターネット利用料/月額1540円(2026年4月に935円に改定予定)
※SCOOP使用料/月額440円

査定・売却のご相談

お客さまに合わせたご売却方法を
提案いたします。
お気軽にお問合せください。

無料査定・売却の相談をする

オークラヤ住宅について

おすすめ物件

あなたが閲覧した物件