お問合せ先 池袋営業所
アクセス
東京都豊島区東池袋1-5-6
ビック池袋東口ビル10階
JR 池袋駅 32番出口 徒歩1分
営業時間
9:50~17:50
定休日
毎週火・水曜日
(冬期休暇 他)

パークハウス中村橋コルニエ

8,280 万円

所在地
東京都練馬区中村北2丁目
地図を見る
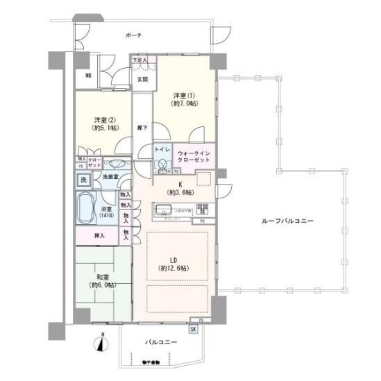
間取り 3LDK
専有面積 77.01㎡(壁芯)
交通
西武池袋・豊島線中村橋」駅まで  徒歩8分
都営大江戸線練馬」駅まで  徒歩14分
主要採光面
所在階数 5階 / 地上8階建
築年月 2003年10月
所在地
東京都練馬区中村北2丁目
地図を見る
交通
西武池袋・豊島線中村橋」駅まで  徒歩8分
都営大江戸線練馬」駅まで  徒歩14分
間取り 3LDK
専有面積 77.01㎡(壁芯)
主要採光面
所在階数 5階 / 地上8階建
築年月 2003年10月

設備・物件の
こだわりポイント

部屋
南向き 南向き
角部屋 角部屋
ルーフバルコニー ルーフバルコニー
LDK15帖以上 LDK15帖以上
建物・設備
エレベーター エレベーター
ペット可 ペット可
総戸数30戸以上 総戸数30戸以上
宅配BOX 宅配BOX
オートロック オートロック

この物件の
おすすめポイント!

西武池袋線「中村橋」駅まで徒歩8分。三菱地所旧分譲「パークハウス」シリーズ、角住戸につき、陽当たり・通風良好。77.01㎡の3LDKに、46.78㎡のルーフバルコニーを備えた、開放感のある住まいです。 ■三菱地所旧分譲の平成15年築、新耐震基準マンション。8階建て5階部分に位置する東南角住戸です。 ■嬉しいルーフバルコニー(46.78㎡・使用料無償)付のお部屋です。 ■落ち着いた住環境に位置するマンションです。 ■カラーモニター付きオートロックシステム採用 ■不在時にも荷物が受け取れる宅配BOX付。荷物の受け取りが多い方に便利な設備です。 ■ポーチ面積(11.88㎡)を備えた住戸。プライバシー性に配慮されたつくりです。 ■遮音性に配慮した二重床・二重天井。リビングダイニングには床暖房付。 ■ルーフバルコニーへの出入りが可能で、リビングダイニングを見渡せるカウンターキッチンです。 ■窓のある、明るい印象の玄関 ■ユニットバス(1418サイズ)は浴室換気乾燥機付き ■各部屋に収納有り。ご家族それぞれの荷物の収納に便利です。 ■バルコニーは、嬉しいスロップシンク付。バルコニーのお掃除やガーデニングにも便利です。 ~ライフインフォメーション~ ・セブンイレブン練馬区中村北千川通り店 約300m ・ファミリーマート練馬中村三丁目店 約300m ・西友中村橋店 約670m ・ライフ練馬区中村北店 約230m ・練馬区役所 約930m ・練馬中村二郵便局 約440m ・練馬区立中村西小学校 約890m ・練馬区立中村中学校 約890m

マンション名
パークハウス中村橋コルニエ
価格

8,280万円

ローンシミュレーション
所在地

東京都練馬区中村北2丁目9-15

地図を見る 地図を見る
交通
西武池袋・豊島線中村橋」駅まで 徒歩8分
都営大江戸線練馬」駅まで 徒歩14分
専有面積
77.01㎡ (壁芯)
間取り
3LDK
バルコニー面積
7.42㎡
その他面積
ルーフバルコニー 46.78㎡
バルコニー向き
主要採光面
建物構造
鉄筋コンクリート造
所在階/階建
5階 / 地上8階建
築年月
2003年10月
総戸数
58戸
管理費
11,500円 / 月
修繕積立金
16,900円 / 月
ペット
駐車場 / 駐車場代
空なし  
現況
居住中
引渡し可能年月
相談
土地権利
所有権
管理会社
三菱地所コミュニティ株式会社
管理形態
全部委託
管理員
日勤
施主
三菱地所(株)
施工
大木建設(株)
取引態様
仲介
その他概要
設備:公営水道、都市ガス
備考
※総戸数58戸、他管理人室1戸
※CATV・CS視聴可(BS視聴不可)
※ルーフバルコニー:46.78㎡(使用料無償)
※ポーチ面積:11.88㎡

査定・売却のご相談

お客さまに合わせたご売却方法を
提案いたします。
お気軽にお問合せください。

無料査定・売却の相談をする

オークラヤ住宅について

おすすめ物件