お問合せ先 新宿支社
営業第一部
アクセス
東京都新宿区西新宿1-6-1
新宿エルタワー12階
東京メトロ新宿駅 A17出口 徒歩0分
JR新宿駅 西口 西改札出口 徒歩3分
営業時間
9:50~17:50
定休日
毎週火・水曜日
(冬期休暇 他)

成城八丁目戸建

18,900 万円

所在地
東京都世田谷区成城8丁目
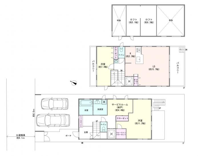
間取り 2SLDK
建物面積 108㎡ (公簿)
交通
小田急小田原線成城学園前」駅まで  徒歩12分
土地面積 136.67㎡ (公簿)
築年月 2009年3月
所在地
東京都世田谷区成城8丁目
交通
小田急小田原線成城学園前」駅まで  徒歩12分
間取り 2SLDK
建物面積 108㎡ (公簿)
土地面積 136.67㎡ (公簿)
築年月 2009年3月

設備・物件の
こだわりポイント

部屋
LDK15帖以上 LDK15帖以上
建物・設備
エレベーター エレベーター
駐車場付き 駐車場付き
その他
住宅ローン控除 住宅ローン控除
(適用には条件があります)

この物件の
おすすめポイント!

■小田急小田原線「成城学園前」駅まで徒歩12分 ■土地面積136.67平米・建物面積108.00平米 ■平成21年3月築・鉄筋コンクリート造・第一種低層住居専用地域 ■内外装リフォーム(2022年1月・2022年5月) ■エレベーター付 ■カーポート有 ●成城8丁目は世田谷区成城エリアの中でも落ち着いた住宅街で上品な街並みです。 ●静かに、強く、美しい鉄筋コンクリート造。時を経ても色褪せない、住宅です。 ●エレベーター付き。移動も設計する、上質な住まい。 ●シャッター付きカーポート。雨の日も風の日も安心・防犯性もあるカーポートです。 ●後片付けもラクラク、環境にも優しいビルトイン食器洗浄乾燥機付 ●三口コンロのキッチンで、料理もはかどります! ●自動湯はりや追い焚き機能を備えたオートバスで一日の疲れを癒していただけます! ●雨の日などに心強い浴室換気乾燥機付。洗濯物を乾かすだけでなく、カビ防止にもなる嬉しい設備です ●大型用品や季節品まで収納でき、衣類だけではなく、バッグや帽子、アクセサリーといったファッションアイテムを一ヶ所で収納できるウォークインクローゼットがあります。 ●収納力があるクローゼットがあり、衣類や小物を効率的に整理し、荷物をスッキリと片付けることができます!

リフォーム・リノベーション内容

リフォーム内容(2022年1月) ●温水洗浄便座交換(1階・2階)●浴室水栓交換 ●照明交換●巾木交換●照明器具設置 ●全室クロス張替 ●ロフトフロアタイル張替●カーテンレール交換 リフォーム内容(2022年5月) ●システムキッチン交換●玄関ドア交換●全室ペアガラス ●1階ウッドデッキ新設●門扉新設 ●外壁塗装●シーリング打替

価格

18,900万円

ローンシミュレーション
所在地

東京都世田谷区成城8丁目

交通
小田急小田原線「成城学園前」駅まで 徒歩12分
築年月
2009年3月
間取り
2SLDK
建物面積
108㎡ (公簿)
建物構造
鉄筋コンクリート造
土地権利
所有権
土地面積
136.67㎡ (公簿)
地目
私道負担
セットバック
接道状況
北西 公道 幅員6.1m 接面6.6m
地勢
-
都市計画
市街化区域
用途地域
第一種低層住居専用地域
建ぺい率
40%
容積率
80%
駐車場
カーポート有 
現況
空家
引渡し可能年月
相談
取引態様
仲介
その他概要
設備:上水道、下水道、公営水道、本下水
備考
※用途地域:第一種低層住居専用地域 ・防火地域:準防火地域:建築基準法22条指定区域 ・建ぺい率:40% ・容積率:80%
※2024年 固定資産税評価額:土地 57,831,910円 建物 8,906,400円 合計 66,738,310円 ・2024年 固定資産税、都市計画税 315,264円
※建築確認済証:平成20年9月10日第20確建0449号 検査済証:平成21年3月16日第20確建0449号 ※全戸数1戸
※接道 北西側約6.1m公道に約6.6m接道

査定・売却のご相談

お客さまに合わせたご売却方法を
提案いたします。
お気軽にお問合せください。

無料査定・売却の相談をする

オークラヤ住宅について

おすすめ物件