お問合せ先 横浜営業所
アクセス
神奈川県横浜市神奈川区鶴屋町2-23-2
TSプラザビルディング15階
JR横浜駅 西口 徒歩3分
営業時間
9:50~17:50
定休日
毎週火・水曜日
(冬期休暇 他)

日吉ハイム

5,880 万円

所在地
地図を見る
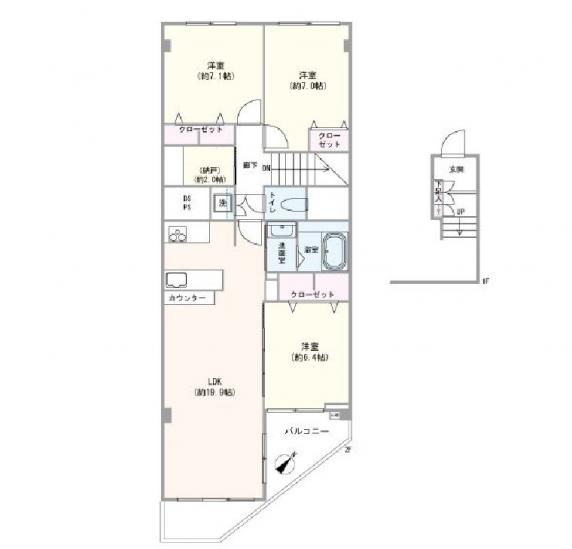
間取り 3LDK
専有面積 98.07㎡(壁芯)
交通
東急東横線日吉」駅まで  徒歩10分
東急目黒線日吉」駅まで  徒歩10分
グリーンライン日吉」駅まで  徒歩10分
主要採光面 南東
所在階数 8階 / 地上8階建
築年月 1969年6月
所在地
地図を見る
交通
東急東横線日吉」駅まで  徒歩10分
東急目黒線日吉」駅まで  徒歩10分
グリーンライン日吉」駅まで  徒歩10分
間取り 3LDK
専有面積 98.07㎡(壁芯)
主要採光面 南東
所在階数 8階 / 地上8階建
築年月 1969年6月

設備・物件の
こだわりポイント

部屋
最上階 最上階
リフォーム(履歴含む) リフォーム(履歴含む)
LDK15帖以上 LDK15帖以上
即引渡可 即引渡可
建物・設備
エレベーター エレベーター
ペット可 ペット可
総戸数100戸以上 総戸数100戸以上
宅配BOX 宅配BOX

この物件の
おすすめポイント!

~新規リノベーション物件×緑豊かな中庭のあるマンション×不在時にも荷物が受け取れる宅配BOX付~ ■総戸数123戸の大規模マンション。緑豊かな中庭のあるマンションです。 ■不在時にも荷物が受け取れる宅配BOX付。共働きのご夫婦や、外出の多いご家族に便利です。 ■掃除の行き届いた綺麗なエントランスで管理体制良好です。 ■広々としたLDKがお部屋の中心。ご家族そろった楽しい時間が過ごせそうですね。 ■建具とフローリングの優しい木目がナチュラルで明るい空間を演出しています。 ■収納力のある広々キッチン!毎日使うキッチンが片付いているとお料理がはかどりそうですね。 ■雨の日などに心強い浴室乾燥機付。洗濯物を乾かすだけでなく、カビ防止にもなる嬉しい設備です。 ■最上階から望む、開放的な眺望を日常の一部に。

リフォーム・リノベーション内容

■システムキッチン交換(食洗機付) ■ユニットバス交換 ■洗面化粧台交換 ■トイレ交換 ■給湯器交換(追焚き機能付) ■建具・玄関収納交換 ■全室クロス・フローリング張替 ■シーリングライト・LEDダウンライト交換 ■給水管・給湯管・排水管交換(一部既存) ■令和7年8月末完成

マンション名
日吉ハイム
価格

5,880万円

ローンシミュレーション
所在地

神奈川県横浜市港北区下田町1丁目1-1

地図を見る 地図を見る
交通
東急東横線日吉」駅まで 徒歩10分
東急目黒線日吉」駅まで 徒歩10分
グリーンライン日吉」駅まで 徒歩10分
専有面積
98.07㎡ (壁芯)
間取り
3LDK
バルコニー面積
16.08㎡
バルコニー向き
南東
主要採光面
南東
建物構造
鉄筋コンクリート造
所在階/階建
8階 / 地上8階建
築年月
1969年6月
総戸数
123戸
管理費
20,610円 / 月
修繕積立金
20,960円 / 月
ペット
駐車場 / 駐車場代
-
現況
現在空室
引渡し可能年月
即時
土地権利
所有権
管理会社
住商建物(株)
管理形態
全部委託
管理員
日勤
施主
住友商事(株)
施工
鹿島建設株式会社
取引態様
仲介
その他概要
設備:公営水道、本下水、都市ガス
備考
自治会費月額:200円

査定・売却のご相談

お客さまに合わせたご売却方法を
提案いたします。
お気軽にお問合せください。

無料査定・売却の相談をする

オークラヤ住宅について

おすすめ物件