お問合せ先
川崎営業所
アクセス
神奈川県川崎市川崎区駅前本町11-1
パシフィックマークス川崎11階
パシフィックマークス川崎11階
JR 川崎駅 東口 徒歩2分
京浜急行線 京急川崎駅 中央口 徒歩2分
京浜急行線 京急川崎駅 中央口 徒歩2分
営業時間
9:50~17:50
定休日
毎週火・水曜日
(冬期休暇 他)
(冬期休暇 他)
シャンボール生麦
2,590 万円
| 所在地 | 神奈川県横浜市鶴見区生麦3丁目
地図を見る
|
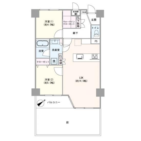
間取り | 2LDK |
|---|---|---|---|
| 専有面積 | 55.21㎡(壁芯) | ||
| 交通 | 主要採光面 | 南東 | |
| 所在階数 | 1階 / 地上4階建 | ||
| 築年月 | 1978年11月 |
| 所在地 | 神奈川県横浜市鶴見区生麦3丁目
地図を見る
|
|---|---|
| 交通 | |
| 間取り | 2LDK |
| 専有面積 | 55.21㎡(壁芯) |
| 主要採光面 | 南東 |
| 所在階数 | 1階 / 地上4階建 |
| 築年月 | 1978年11月 |
設備・物件の
こだわりポイント
立地・交通
部屋
建物・設備
この物件の
おすすめポイント!
~27.57㎡の専用庭付き。開放感ある暮らしを叶えるリノベーション住戸~ ● 生麦駅徒歩6分、駅まで平坦な道のり、歩きやすい立地です。 ● ちょっとした買い物に便利な立地、「とりあえず」がすぐに手に入る、ちょうどいい距離感 ( まいばすけっと生麦3丁目店 約70m、 クリエイトS・D 鶴見生麦店 約120m) ● 27.57㎡の専用庭付き。(使用料 無償) ● 開放感のあるカウンターキッチン、リビングとゆるやかにつながる、洗練された空間設計 ● 洋服も荷物もまとめて収納、便利なWIC付き! ● 雨の日などに心強い浴室乾燥機付 洗濯物を乾かすだけでなく、カビ防止にもなる嬉しい設備です。
リフォーム・リノベーション内容
新規リノベーション後引渡し(令和7年9月完成予定) ● キッチン交換(食洗機付) ● ユニットバス交換(浴室乾燥機付・追焚き機能付) ● 洗面化粧台交換(シャワー水栓付) ● トイレ交換(温水洗浄便座付) ● フローリング張替え ● 建具交換、下駄箱交換 ● クロス全室張替え ● 照明全室交換 ● エアコン1台設置 ● ハウスクリーニング
- マンション名
- シャンボール生麦
- 価格
-
2,590万円
ローンシミュレーション
- 専有面積
- 55.21㎡ (壁芯)
- 間取り
- 2LDK
- バルコニー面積
- 4.26㎡
- その他面積
- 専用庭 27.57㎡
- バルコニー向き
- 南東
- 主要採光面
- 南東
- 建物構造
- 鉄筋コンクリート造
- 所在階/階建
- 1階 / 地上4階建
- 築年月
- 1978年11月
- 総戸数
- 70戸
- 管理費
- 8,830円 / 月
- 修繕積立金
- 14,910円 / 月
- ペット
- 不可
- 駐車場 / 駐車場代
-
空なし 20,000円/月
- 現況
- 現在空室
- 引渡し可能年月
- 相談
- 土地権利
- 所有権
- 管理会社
- (株)秀栄興産
- 管理形態
- 全部委託
- 管理員
- 日勤
- 施主
- 加島不動産(株)
- 施工
- (株)三平興業
- 取引態様
- 仲介
- その他概要
- 設備:都市ガス
- 備考
-
※駐車場等の空き状況に関しましては、担当者までご確認ください。
※総戸数70戸(内訳:住戸数69戸、管理人室1戸)
査定・売却のご相談
お客さまに合わせたご売却方法を
提案いたします。
お気軽にお問合せください。