お問合せ先 川崎営業所
アクセス
神奈川県川崎市川崎区駅前本町11-1
パシフィックマークス川崎11階
JR 川崎駅 東口 徒歩2分
京浜急行線 京急川崎駅 中央口 徒歩2分
営業時間
9:50~17:50
定休日
毎週火・水曜日
(冬期休暇 他)

川崎河原町分譲共同ビル 15号棟

3,380 万円

所在地
地図を見る
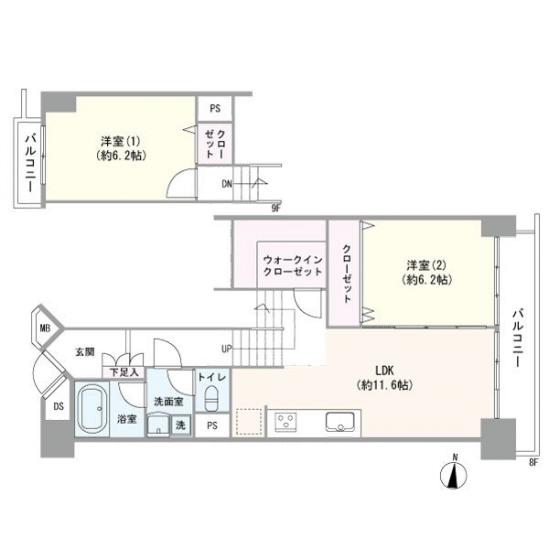
間取り 2LDK
専有面積 61.09㎡(登記)
交通
東海道本線川崎」駅まで  徒歩17分
京浜東北・根岸線川崎」駅まで  徒歩17分
南武線川崎」駅まで  徒歩17分
主要採光面
所在階数 8階 / 地上15階建
築年月 1975年10月
所在地
地図を見る
交通
東海道本線川崎」駅まで  徒歩17分
京浜東北・根岸線川崎」駅まで  徒歩17分
南武線川崎」駅まで  徒歩17分
間取り 2LDK
専有面積 61.09㎡(登記)
主要採光面
所在階数 8階 / 地上15階建
築年月 1975年10月

設備・物件の
こだわりポイント

立地・交通
駅まで平坦 駅まで平坦
部屋
リフォーム(履歴含む) リフォーム(履歴含む)
リフォーム後引渡し リフォーム後引渡し
建物・設備
エレベーター エレベーター
総戸数100戸以上 総戸数100戸以上

この物件の
おすすめポイント!

■マンション・お部屋について ・JR東海道線・京浜東北線・南武線「川崎」駅まで徒歩17分 行先に合わせて使い分けが出来ます! ・駅まで平坦なため、歩きやすい立地です。 ・大林組施工、総戸数176戸の大規模マンション。 ・敷地内にスーパー、郵便局があり日々の買い物や生活に便利な住環境。 ・商業施設や商店街が充実した川崎駅生活圏の立地です。 ・独立性が確保出来るメゾネットタイプのお部屋です。2面バルコニーで開放感のある住まい。 ・眺望良好なお部屋です。晴れた日には青空が広がります。 (ライフインフォメーション) ・そうてつローゼン河原町店 約60m ・川崎河原町郵便局 約10m ・セブンイレブン川崎神明町店 約100m ・栄通り 約80m   ・南河原銀座ハッピーロード 約480m ・ラゾーナ川崎プラザ 約880m

リフォーム・リノベーション内容

■新規リノベーション後引渡し(令和8年4月完成予定) ・システムキッチン交換(浄水器・食洗機付:W2100) ・ユニットバス交換(追い焚き機能付、換気乾燥機付) ・洗面化粧台交換 ・トイレ交換(温水洗浄便座付) ・フローリング張替(LDK、洋室全室、廊下) ・壁・天井クロス張替え

マンション名
川崎河原町分譲共同ビル 15号棟
価格

3,380万円

ローンシミュレーション
所在地

神奈川県川崎市幸区河原町1-15

地図を見る 地図を見る
交通
東海道本線川崎」駅まで 徒歩17分
京浜東北・根岸線川崎」駅まで 徒歩17分
南武線川崎」駅まで 徒歩17分
専有面積
61.09㎡ (登記)
間取り
2LDK
バルコニー面積
-
バルコニー向き
-
主要採光面
建物構造
鉄骨鉄筋コンクリート造
所在階/階建
8階 / 地上15階建
築年月
1975年10月
総戸数
176戸
管理費
5,000円 / 月
修繕積立金
17,000円 / 月
ペット
不可
駐車場 / 駐車場代
無 
現況
現在空室
引渡し可能年月
即時
土地権利
所有権
管理会社
管理形態
自主
管理員
不在
施主
神奈川県住宅供給公社
施工
(株)大林組
取引態様
仲介
その他概要
設備:公営水道、都市ガス
備考
※メゾネットタイプ(8・9階部)のお部屋です
※土地権利区分:所有権、一部旧法地上権(期限:住戸及びこれを支える柱の基礎が存する間・借地料:なし)
※駐輪場、バイク置き場の空き状況に関しましては、担当者までご確認ください。

査定・売却のご相談

お客さまに合わせたご売却方法を
提案いたします。
お気軽にお問合せください。

無料査定・売却の相談をする

オークラヤ住宅について

おすすめ物件