お問合せ先 西川口営業所
アクセス
埼玉県川口市並木3-1-19
第1永新ビル5・6階
JR 西川口駅 東口 徒歩1分
営業時間
9:50~17:50
定休日
毎週火・水曜日
(冬期休暇 他)

エルザタワー55

5,599 万円

所在地
埼玉県川口市元郷2丁目
地図を見る
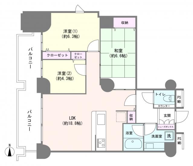
間取り 3LDK
専有面積 83.5㎡(壁芯)
交通
埼玉高速鉄道川口元郷」駅まで  徒歩6分
京浜東北・根岸線川口」駅まで  徒歩18分
主要採光面 西
所在階数 6階 / 地上55階建
築年月 1998年3月
所在地
埼玉県川口市元郷2丁目
地図を見る
交通
埼玉高速鉄道川口元郷」駅まで  徒歩6分
京浜東北・根岸線川口」駅まで  徒歩18分
間取り 3LDK
専有面積 83.5㎡(壁芯)
主要採光面 西
所在階数 6階 / 地上55階建
築年月 1998年3月

設備・物件の
こだわりポイント

立地・交通
駅まで平坦 駅まで平坦
部屋
リフォーム(履歴含む) リフォーム(履歴含む)
LDK15帖以上 LDK15帖以上
即引渡可 即引渡可
建物・設備
エレベーター エレベーター
ペット可 ペット可
総戸数100戸以上 総戸数100戸以上
宅配BOX 宅配BOX
オートロック オートロック
その他
住宅ローン控除 住宅ローン控除
(適用には条件があります)

この物件の
おすすめポイント!

■新耐震基準 ■専有面積83.50平米・3LDK・56階建6階部分 ■新規リノベーション(2025年7月) ■オートロック・外壁タイル張り ●エルザタワー55は総戸数650戸で充実した共用スペースやサービスが提供され、快適な生活環境が整っています。 荒川のほとりに位置し、自然環境と都市機能の両方を享受できる立地です。 ●システムキッチン新規交換・後片付けもラクラク、環境にも優しいビルトイン食器洗浄乾燥機付 ●三口コンロのキッチンで、料理もはかどります! ●ユニットバス新規交換・自動湯はりや追い焚き機能を備えたオートバスで一日の疲れを癒していただけます! ●雨の日などに心強い浴室換気乾燥機付。洗濯物を乾かすだけでなく、カビ防止にもなる嬉しい設備です ●床暖房付きなので寒い冬でもリビングルームはいつも暖か。くつろぎの時間を大切にできます ●収納力があるクローゼットがあり、衣類や小物を効率的に整理し、荷物をスッキリと片付けることができます! ●シューズボックス有。靴を収納するだけでなく、玄関を整理整頓し、美観と機能性を両立させてくれます。 ●24時間荷物の受取可能な宅配ボックス。不在時の荷物の受取に便利です ●エントランスは防犯に配慮されたオートロックシステムです。 ●安心感のある24時間有人管理。上質な暮らしにふさわしい、安心を支える管理です。 ●各階にゴミステーションが有ります。 ●1998年3月竣工  ●(株)大京旧分譲、竹中工務店・鹿島建設・埼玉建興共同企業体施工の「ライオンズマンションブランド」を代表する超高層タワーレジデンス。 ●11人乗りのシースルー型の高速エレベーターが低層・中層・高層毎に分かれております ●大切な家族の一員であるペットと一緒に過ごせるうれしい住戸です。(2匹まで 他飼育細則有) ==居住者が快適に暮らせる充実した共用施設== ・料理教室やパーティーなどが開ける【スカイラウンジ】(55階) ・ミニキッチン、ベッド、トイレ、バスルーム完備の【ゲストルーム】(43階) ・ピアノ教室や楽器演奏が楽しめる【スカイスタジオ】(36階) ・宿泊ルームとしてもご利用になれる【和室サロン】(29階) ・DIYなどの趣味を楽しめる【クラフトルーム】(20階) ・お子さま向けの絵本などを中心に集められた【キッズライブラリー】(10階) ・子どもたちの遊び場として10階、20階、30階、37階、44階の5ヵ所に【スカイポケットパーク】が設置 ※一部利用料金がかかります。詳細は担当者まで。 【ゴミ処理システム】 収集日にかかわらず各階に設置してあるコンテナに24時間いつでもゴミ出し可能。 【宅配ロッカー】 外出中に届けられた宅配便などの小荷物を、いつでも受け取ることができる宅配ロッカーが設置 【安心・快適な管理】 受付カウンターのフロントが管理員業務の窓口です。暮らしに役立つさまざまなサービスが受けられます。 【1階カフェテラス】 1階にはおしゃべりに、読書に、ゆとりのカフェテラス。 【シースルーエレベーター】 開放感と防犯性を高めた高速エレベーター

リフォーム・リノベーション内容

リノベーション内容(2025年7月完成) ●システムキッチン新規交換(食洗機・浄水器付) ●ユニットバス新規交換(浴室暖房乾燥・追い焚き付) ●シャワー付トイレ新規交換 ●洗面化粧台・洗濯パン新規交換 ●フローリング上張 ●全室クロス張替 ●フロアタイル全面張替 ●和室(畳新規) ●ハウスクリーニング

マンション名
エルザタワー55
価格

5,599万円

ローンシミュレーション
所在地

埼玉県川口市元郷2丁目15-1

地図を見る 地図を見る
交通
埼玉高速鉄道川口元郷」駅まで 徒歩6分
京浜東北・根岸線川口」駅まで 徒歩18分
専有面積
83.5㎡ (壁芯)
間取り
3LDK
バルコニー面積
14.25㎡
バルコニー向き
西
主要採光面
西
建物構造
鉄骨鉄筋コンクリート造
所在階/階建
6階 / 地上55階建
築年月
1998年3月
総戸数
650戸
管理費
20,880円 / 月
修繕積立金
15,450円 / 月
ペット
駐車場 / 駐車場代
空なし 11,000円/月~17,000円/月 
現況
現在空室
引渡し可能年月
即時
土地権利
所有権
管理会社
(株)大京アステージ
管理形態
全部委託
管理員
日勤
施主
(株)大京
施工
竹中工務店・鹿島建設・埼玉建興
取引態様
仲介
その他概要
設備:公営水道、本下水、都市ガス
備考
※テレビ共聴施設:CATV、BS、CS(個別契約)
※インターネット:NTT、KDDI、Yahoo、CATV(個別契約)
※駐車場、駐輪場の空状況は担当にお問い合わせ下さい

査定・売却のご相談

お客さまに合わせたご売却方法を
提案いたします。
お気軽にお問合せください。

無料査定・売却の相談をする

オークラヤ住宅について

おすすめ物件