お問合せ先
西川口営業所
アクセス
埼玉県川口市並木3-1-19
第1永新ビル5・6階
第1永新ビル5・6階
JR 西川口駅 東口 徒歩1分
営業時間
9:50~17:50
定休日
毎週火・水曜日
(冬期休暇 他)
(冬期休暇 他)
川口市朝日一丁目中古戸建
4,580 万円
| 所在地 | 埼玉県川口市朝日1丁目
|
間取り | 4LDK |
|---|---|---|---|
| 建物面積 | 105.99㎡ (公簿) | ||
| 交通 | 土地面積 | 120.4㎡ (公簿) | |
| 築年月 | 2012年3月 |
| 所在地 | 埼玉県川口市朝日1丁目
|
|---|---|
| 交通 | |
| 間取り | 4LDK |
| 建物面積 | 105.99㎡ (公簿) |
| 土地面積 | 120.4㎡ (公簿) |
| 築年月 | 2012年3月 |
設備・物件の
こだわりポイント
立地・交通
部屋
その他
(適用には条件があります)
この物件の
おすすめポイント!
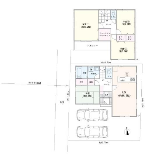
●「南鳩ヶ谷」駅まで徒歩12分、「川口元郷」駅まで徒歩13分の立地! ●平成24年築・敷地36坪超のゆとりある2階建て住宅。 ●駐車2台可!(車種による制限有)車をお持ちのご家庭にもうれしい広さ。 ●16.3帖のLDKに和室を隣接、家族が自然と集う空間。 ●南面バルコニーから光が差し込む、明るく開放的な間取り。 ●全居室6帖以上、どのお部屋も広々として快適。 ●主寝室は約10.2帖!ご夫婦でゆったり過ごせる贅沢な広さ。 ●全室に窓を配置し、風通し・採光ともに良好です。 ●家事動線の良いカウンターキッチンで毎日の料理も快適。 ●WIC・床下収納付きで収納力もたっぷり確保。 ●浴室には窓があり、換気しやすく清潔を保ちやすい設計。 ●2か所のトイレで朝の支度もスムーズ。 ●モニター付きインターホンでセキュリティ面も配慮。 ●陽当たり・通風・プライバシー、三拍子そろった快適な住まい。 ●家族の成長とともに長く住み続けられる安心設計。 ●暮らしやすさとゆとりを兼ね備えた、家族想いの住空間。 ●明るさと開放感に包まれた、笑顔あふれるファミリー邸宅です。
- 価格
-
4,580万円
ローンシミュレーション
- 所在地
-
埼玉県川口市朝日1丁目
- 交通
-
埼玉高速鉄道「南鳩ヶ谷」駅まで 徒歩12分
埼玉高速鉄道「川口元郷」駅まで 徒歩13分
- 築年月
- 2012年3月
- 間取り
- 4LDK
- 建物面積
- 105.99㎡ (公簿)
- 建物構造
- 木造
- 土地権利
- 所有権
- 土地面積
- 120.4㎡ (公簿)
- 地目
- 宅地
- 私道負担
- 無
- セットバック
- 無
- 接道状況
- 西 公道 幅員18.0m 接面11.3m
- 地勢
- -
- 都市計画
- 市街化区域
- 用途地域
- 第二種住居地域
- 建ぺい率
- 60%
- 容積率
- 200%
- 駐車場
- -
- 現況
- 居住中
- 引渡し可能年月
- 相談
- 取引態様
- 仲介
- その他概要
- 設備:電気、下水道、公営水道、本下水、都市ガス
- 備考
査定・売却のご相談
お客さまに合わせたご売却方法を
提案いたします。
お気軽にお問合せください。