お問合せ先 西川口営業所
アクセス
埼玉県川口市並木3-1-19
第1永新ビル5・6階
JR 西川口駅 東口 徒歩1分
営業時間
9:50~17:50
定休日
毎週火・水曜日
(冬期休暇 他)

シャルマンコーポ鳩ケ谷

4,990 万円

所在地
地図を見る
間取り 4SLDK
専有面積 149.61㎡(壁芯)
交通
埼玉高速鉄道鳩ヶ谷」駅まで  徒歩9分
主要採光面
所在階数 9階 / 地上10階建
築年月 1994年10月
所在地
地図を見る
交通
埼玉高速鉄道鳩ヶ谷」駅まで  徒歩9分
間取り 4SLDK
専有面積 149.61㎡(壁芯)
主要採光面
所在階数 9階 / 地上10階建
築年月 1994年10月

設備・物件の
こだわりポイント

部屋
南向き 南向き
角部屋 角部屋
ルーフバルコニー ルーフバルコニー
LDK15帖以上 LDK15帖以上
建物・設備
エレベーター エレベーター
ペット可 ペット可
総戸数100戸以上 総戸数100戸以上
宅配BOX 宅配BOX
駐車場空あり 駐車場空あり
オートロック オートロック

この物件の
おすすめポイント!

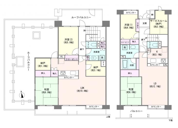
〇総戸数108戸の大規模マンション。管理員が日勤で勤務しており、管理体制良好です。 ○長期修繕計画有。共用部分の修繕も計画的に行われています。 〇嬉しい「ペット飼育可能」物件です(※細則有)。 〇1階(9階部分)は71.61㎡の2SLDK、2階(10階部分)は78.00㎡の2LDK、合計約149㎡のゆとりある住空間。 〇戸建て感覚の上下階住戸で、プライベート性と開放感を兼ね備えた魅力的な住まいです。 〇南向きバルコニーに加え、西・北側には合計約43㎡のルーフバルコニーを備え、陽当たり・通風・眺望良好です。 〇最上階ならではの明るさと開放感。日差しがたっぷり差し込み、快適で心地よい毎日をお過ごしいただけます。 〇家事をしながら会話が楽しめるカウンターキッチン。ご家族やお客様との会話も弾みます。 〇作業スペースが広く、三口IHコンロのキッチンで、料理もはかどりそう。 〇専有管引き込み部に「家じゅうまるごとファインバブル」設置。各水洗からウルトラファインバブルのお水やお湯がでます。 〇クローゼット・押入が各階に配置され、衣類・季節用品・日用品を用途に合わせてすっきり収納できます。 〇小・中学校が徒歩5分以内に揃う、子育て世代にうれしい立地。 ■Life Information ・川口市立里小学校まで徒歩2分(約160m) ・川口市立里中学校まで徒歩5分(約400m) ・セブンイレブン川口西新井宿店まで徒歩6分(約430m) ・スギドラッグ川口西新井宿店まで徒歩8分(約630m) ・ジェーソン鳩ヶ谷里店まで徒歩12分(約900m) ・ドン・キホーテ川口新井宿店まで徒歩5分(約380m) ・イオンスタイル新井宿駅前店まで徒歩11分(約810m)

マンション名
シャルマンコーポ鳩ケ谷
価格

4,990万円

ローンシミュレーション
所在地

埼玉県川口市大字里936-1

地図を見る 地図を見る
交通
埼玉高速鉄道鳩ヶ谷」駅まで 徒歩9分
専有面積
149.61㎡ (壁芯)
間取り
4SLDK
バルコニー面積
20.43㎡
その他面積
ルーフバルコニー 43.75㎡
バルコニー向き
主要採光面
建物構造
鉄骨鉄筋コンクリート造
所在階/階建
9階 / 地上10階建
築年月
1994年10月
総戸数
108戸
管理費
24,540円 / 月
修繕積立金
17,950円 / 月
ペット
駐車場 / 駐車場代
空あり 12,000円/月 
(令和8年3月現在)
現況
居住中
引渡し可能年月
相談
土地権利
所有権
管理会社
(株)大京アステージ
管理形態
全部委託
管理員
日勤
施主
東レ建設(株)
施工
(株)福田組
取引態様
仲介
その他概要
設備:オール電化、公営水道、本下水
備考
※ルーフバルコニー面積43.75㎡/使用料月額1750円
※駐車場、バイク置場、駐輪場の空き状況につきましては担当者までお問い合わせください。(バイク置場月額1000円、駐輪場年額1200円)

査定・売却のご相談

お客さまに合わせたご売却方法を
提案いたします。
お気軽にお問合せください。

無料査定・売却の相談をする

オークラヤ住宅について