お問合せ先
新宿支社
営業第二部
営業第二部
アクセス
東京都新宿区西新宿1-6-1
新宿エルタワー12階
新宿エルタワー12階
東京メトロ新宿駅 A17出口 徒歩0分
JR新宿駅 西口 西改札出口 徒歩3分
JR新宿駅 西口 西改札出口 徒歩3分
営業時間
9:50~17:50
定休日
毎週火・水曜日
(冬期休暇 他)
(冬期休暇 他)
国分寺内藤一丁目戸建 2号棟
6,480 万円
| 所在地 | 東京都国分寺市内藤1丁目
|
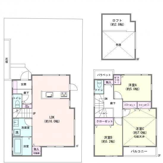
間取り | 3LDK |
|---|---|---|---|
| 建物面積 | 81.14㎡ (実測) | ||
| 交通 | 土地面積 | 102.03㎡ (実測) | |
| 築年月 | 2025年12月 |
| 所在地 | 東京都国分寺市内藤1丁目
|
|---|---|
| 交通 | |
| 間取り | 3LDK |
| 建物面積 | 81.14㎡ (実測) |
| 土地面積 | 102.03㎡ (実測) |
| 築年月 | 2025年12月 |
この物件の
おすすめポイント!
自然とのバランスが取れた整然とした街並みに建築される(株)メルディア施工の建売住宅! ~はじめてのマイホーム、注文しなくても理想がここに~ 【 アクセス 】 ◇JR中央線「西国分寺」駅まで徒歩17分 ◇JR中央線「国立」駅まで徒歩17分 ◇JR中央線「国立」駅までバス9分「多摩蘭坂」停まで徒歩4分 ◇京王線「府中」駅までバス25分「多摩蘭坂」停まで徒歩3分 【 Life Information 】 ◇ジェーソン 西国分寺店 約320m ◇コープみらい コープ国分寺内藤店 約530m ◇セブン-イレブン 国立東3丁目店 約310m ◇府中市立 武蔵台公園 約580m ◇東京都立多摩総合医療センター 約800m ◇国分寺市立第四小学校 約1290m ◇国分寺市立第四中学校 約1810m
- 価格
-
6,480万円
ローンシミュレーション
- 所在地
-
東京都国分寺市内藤1丁目
- 交通
-
中央本線「西国分寺」駅まで 徒歩17分
中央本線「国立」駅まで 徒歩17分
中央本線「国立」駅まで バス9分 「多摩蘭坂」停まで 徒歩4分
- 築年月
- 2025年12月
- 間取り
- 3LDK
- 建物面積
- 81.14㎡ (実測)
- 建物構造
- 木造
- 土地権利
- 所有権
- 土地面積
- 102.03㎡ (実測)
- 地目
- 宅地
- 私道負担
- 無
- セットバック
- 要 8.1㎡
- 接道状況
- 北東 私道 幅員3.4m 接面7.3m
- 地勢
- -
- 都市計画
- 市街化区域
- 用途地域
- 第一種低層住居専用地域
- 建ぺい率
- 40%
- 容積率
- 80%
- 駐車場
- -
- 現況
- 未完成
- 引渡し可能年月
- 相談
- 取引態様
- 仲介
- その他概要
- 備考
査定・売却のご相談
お客さまに合わせたご売却方法を
提案いたします。
お気軽にお問合せください。